帐号
注册
密码
登录
关闭
安全选项
找回密码
记住我
我的中心
登录或注册新用户,开通自己的个人中心
HIFI168首页
快速搜索
帖子标题
作者
版块
发烧论坛
»
发烧专区
»
HiFi乐趣
»
想留个独立空间放HIFI系统,三个空间大家帮忙看看哪个更好一些
发烧专区
HiFi乐趣
音乐唱片
器材用家专区
在线试听
交易论坛
硬件交易
软件交易
返回列表
查看:
5534
|
回复:
6
想留个独立空间放HIFI系统,三个空间大家帮忙看看哪个更好一些
[复制链接]
查看:
5534
|
回复:
6
发送短消息
UID
115640
精华
0
查看公共资料
搜索主题
搜索帖子
edwinwang
组别
论坛学士
生日
帖子
10
积分
80
性别
注册时间
2007-10-29
edwinwang
论坛学士
1
#
字体大小:
t
T
发表于
2020-12-15 18:05
|
只看楼主
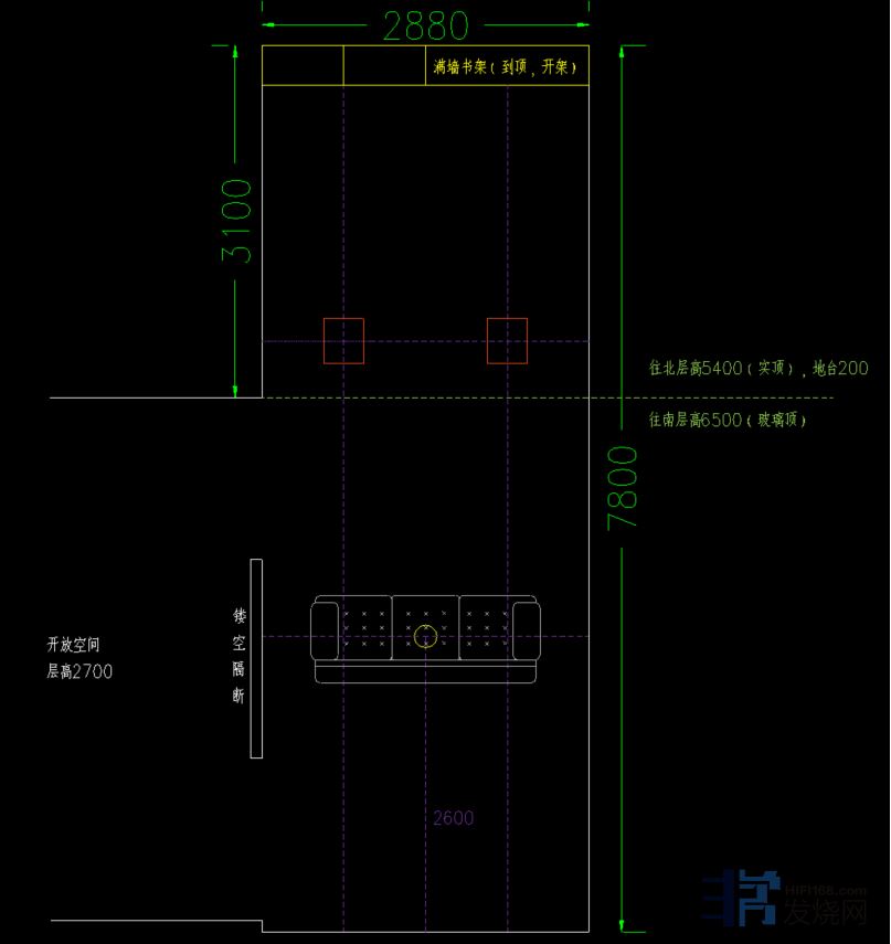
想留个独立空间放HIFI系统,目前有三个选择,但都不是太满意,大家帮忙看一下哪个相对好一些(土建修改已经没机会了):
空间一:3.1米*3.1米*2.6米高 , 其中一面墙是落地玻璃
空间1.png
(45.40 K)
2020/12/16 14:39:00
空间二:3.2米*2.7米*2.6米高,其中一面墙离地1米以上是玻璃
空间2.png
(43.98 K)
2020/12/16 14:39:00
空间三:2.9米*7.8米*6.5米高, 有个长边的后半段大约4米是开放的, 顶面靠后的三分之二是玻璃顶
空间3.png
(40.99 K)
2020/12/16 14:39:00
分享
转发
TOP
发送短消息
UID
244293
精华
18
查看公共资料
搜索主题
搜索帖子
阳光枫林
组别
论坛博士后
生日
帖子
2369
积分
6807
性别
注册时间
2012-09-23
阳光枫林
论坛博士后
2
#
字体大小:
t
T
发表于
2020-12-15 19:44
|
只看该用户
最好画个图
TOP
发送短消息
UID
115640
精华
0
查看公共资料
搜索主题
搜索帖子
edwinwang
组别
论坛学士
生日
帖子
10
积分
80
性别
注册时间
2007-10-29
edwinwang
论坛学士
3
#
字体大小:
t
T
发表于
2020-12-16 14:39
|
只看楼主
回复
2楼
阳光枫林
的帖子
我把三个空间各画了一个图(CAD不熟练,只是大概画了下),请枫林兄指点一下,谢谢~
TOP
发送短消息
UID
367257
精华
2
查看公共资料
搜索主题
搜索帖子
千里独行者
千里独行者
组别
论坛博士后
生日
1970-11-12
帖子
197
积分
1752
性别
注册时间
2020-06-12
千里独行者
论坛博士后
4
#
字体大小:
t
T
发表于
2020-12-17 06:40
|
只看该用户
用第二个空间加上厚的双层落地窗帘。
系统:德国意力509音箱,德国MBL1531A CD机,德国AA TUBE PREAMP II-MK2前级,德国AA AMP III 后级,德国 FE机架。
TOP
发送短消息
UID
115640
精华
0
查看公共资料
搜索主题
搜索帖子
edwinwang
组别
论坛学士
生日
帖子
10
积分
80
性别
注册时间
2007-10-29
edwinwang
论坛学士
5
#
字体大小:
t
T
发表于
2020-12-17 09:32
|
只看楼主
回复
4楼
千里独行者
的帖子
谢谢指点,我自己也是感觉可能空间二最不容易犯错的选择。
但是又觉得空间三的体积最大,可以上大箱子,只是层高是两层多的高度,怕有很大影响
TOP
发送短消息
UID
87914
精华
0
723711829
查看公共资料
搜索主题
搜索帖子
ciscofan
单尼
组别
论坛博士后
生日
19720110
帖子
1158
积分
1968
性别
注册时间
2005-09-21
ciscofan
论坛博士后
6
#
字体大小:
t
T
发表于
2020-12-17 11:21
|
只看该用户
层高高是优势,不担心的。比例要好,窗户处搞个活动的扩散。
爵士机架 脚架 CD柜 扩散吸音 坛友特别优惠
https://js-jj.taobao.com/
微信 15307005970
TOP
发送短消息
UID
317152
精华
0
查看公共资料
搜索主题
搜索帖子
烧到残废
组别
论坛博士后
生日
帖子
995
积分
4175
性别
注册时间
2014-04-08
烧到残废
论坛博士后
7
#
字体大小:
t
T
发表于
2020-12-17 12:36
|
只看该用户
空间三的方案好
探索音响质量规律的真相,抵制假冒伪劣玄的忽悠
TOP
上一主题
|
下一主题
返回列表
高级编辑器
B
Color
Image
Link
Quote
Code
Smilies
默认表情
你需要登录后才可以发帖
登录
|
注册
发表回复
查看背景广告
隐藏
发新主题
发烧专区
HiFi乐趣
音乐唱片
器材用家专区
在线试听
交易论坛
硬件交易
软件交易
浏览过的版块
音乐唱片
硬件交易
软件交易
TOP
设置头像
个人资料
更改密码
用户组
收藏夹
积分