帐号
注册
密码
登录
关闭
安全选项
找回密码
记住我
我的中心
登录或注册新用户,开通自己的个人中心
HIFI168首页
快速搜索
帖子标题
作者
版块
发烧论坛
»
发烧专区
»
HiFi乐趣
»
关于我的听音室问题之请教。。。
发烧专区
HiFi乐趣
音乐唱片
器材用家专区
在线试听
交易论坛
硬件交易
软件交易
返回列表
1
2
下一页
查看:
5861
|
回复:
23
关于我的听音室问题之请教。。。
[复制链接]
查看:
5861
|
回复:
23
发送短消息
UID
83654
精华
0
查看公共资料
搜索主题
搜索帖子
zhangwanhui
zhangwanhui
组别
论坛博士后
生日
19720110
帖子
2930
积分
2980
性别
注册时间
2005-05-10
zhangwanhui
论坛博士后
1
#
字体大小:
t
T
发表于
2013-09-07 23:13
|
显示全部
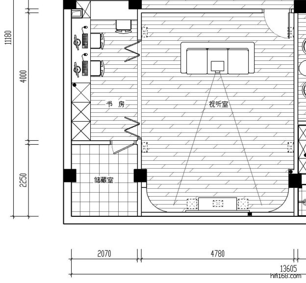
各位同好,最近小弟准备弄个视听室,主要听古典,兼顾影院。如图。
宽4.78米 长6.25米 净高2.7米
请教:
1、HIFI器材放在沙发正对面,影院器材放在沙发前方右侧,可否?
2、沙发前方左右两侧墙体前只做书柜,不再做隔音吸音,如何?
3、书房这段尚未砌起来的墙,如果要保证视听室左右声音平衡,砌多长合适?
4、根据此图,您是否有更好的设计方案?
请各位大侠不吝赐教,谢谢啦。
zhangwanhui 最后编辑于 2013-09-07 23:35:56
分享
转发
TOP
发送短消息
UID
83654
精华
0
查看公共资料
搜索主题
搜索帖子
zhangwanhui
zhangwanhui
组别
论坛博士后
生日
19720110
帖子
2930
积分
2980
性别
注册时间
2005-05-10
zhangwanhui
论坛博士后
2
#
字体大小:
t
T
发表于
2013-09-07 23:16
|
显示全部
图片如何插入?好久没有发帖了,都忘记了,,,,上传附件显示为灰色,无法点击,权限受限了?
TOP
发送短消息
UID
83654
精华
0
查看公共资料
搜索主题
搜索帖子
zhangwanhui
zhangwanhui
组别
论坛博士后
生日
19720110
帖子
2930
积分
2980
性别
注册时间
2005-05-10
zhangwanhui
论坛博士后
3
#
字体大小:
t
T
发表于
2013-09-07 23:19
|
显示全部
1111111.jpg
(150.73 K)
2013/9/8 1:01:06
zhangwanhui 最后编辑于 2013-09-08 01:01:06
TOP
发送短消息
UID
83654
精华
0
查看公共资料
搜索主题
搜索帖子
zhangwanhui
zhangwanhui
组别
论坛博士后
生日
19720110
帖子
2930
积分
2980
性别
注册时间
2005-05-10
zhangwanhui
论坛博士后
4
#
字体大小:
t
T
发表于
2013-09-07 23:24
|
显示全部
2222222222.jpg
(209.38 K)
2013/9/8 1:03:23
zhangwanhui 最后编辑于 2013-09-08 01:03:23
TOP
发送短消息
UID
83654
精华
0
查看公共资料
搜索主题
搜索帖子
zhangwanhui
zhangwanhui
组别
论坛博士后
生日
19720110
帖子
2930
积分
2980
性别
注册时间
2005-05-10
zhangwanhui
论坛博士后
5
#
字体大小:
t
T
发表于
2013-09-07 23:27
|
显示全部
3333333333.jpg
(156.32 K)
2013/9/8 1:02:27
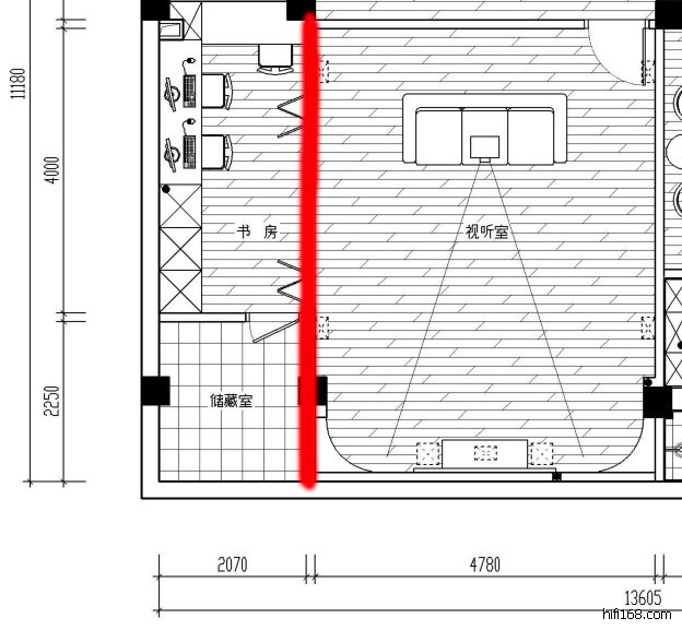
红线处有一条很高的梁,梁下仅有2米高,可通往书房和储藏室。
就是因为这条梁不能打掉,所以听音室只能按照目前这个方向摆位。
zhangwanhui 最后编辑于 2013-09-08 01:02:27
TOP
发送短消息
UID
83654
精华
0
查看公共资料
搜索主题
搜索帖子
zhangwanhui
zhangwanhui
组别
论坛博士后
生日
19720110
帖子
2930
积分
2980
性别
注册时间
2005-05-10
zhangwanhui
论坛博士后
6
#
字体大小:
t
T
发表于
2013-09-07 23:33
|
显示全部
能看到图片吗?看不到的话请移步:
http://blog.sina.com.cn/s/blog_755ce2860101f0yt.html
TOP
发送短消息
UID
83654
精华
0
查看公共资料
搜索主题
搜索帖子
zhangwanhui
zhangwanhui
组别
论坛博士后
生日
19720110
帖子
2930
积分
2980
性别
注册时间
2005-05-10
zhangwanhui
论坛博士后
7
#
字体大小:
t
T
发表于
2013-09-08 00:59
|
显示全部
原帖由
名琅庄
于 2013-9-8 0:29:00 发表
有相片或布局图纸么?
完了,不会上传图片了,
看平面图,请移步:
http://blog.sina.com.cn/s/blog_755ce2860101f0yt.html
TOP
发送短消息
UID
83654
精华
0
查看公共资料
搜索主题
搜索帖子
zhangwanhui
zhangwanhui
组别
论坛博士后
生日
19720110
帖子
2930
积分
2980
性别
注册时间
2005-05-10
zhangwanhui
论坛博士后
8
#
字体大小:
t
T
发表于
2013-09-08 14:04
|
显示全部
影院系统放在哪里比较好呢
TOP
发送短消息
UID
83654
精华
0
查看公共资料
搜索主题
搜索帖子
zhangwanhui
zhangwanhui
组别
论坛博士后
生日
19720110
帖子
2930
积分
2980
性别
注册时间
2005-05-10
zhangwanhui
论坛博士后
9
#
字体大小:
t
T
发表于
2013-09-09 17:27
|
显示全部
谢谢各位指导
TOP
上一主题
|
下一主题
返回列表
1
2
下一页
高级编辑器
B
Color
Image
Link
Quote
Code
Smilies
默认表情
你需要登录后才可以发帖
登录
|
注册
发表回复
查看背景广告
隐藏
发新主题
发烧专区
HiFi乐趣
音乐唱片
器材用家专区
在线试听
交易论坛
硬件交易
软件交易
浏览过的版块
音乐唱片
软件交易
硬件交易
在线试听
器材用家专区
TOP
设置头像
个人资料
更改密码
用户组
收藏夹
积分