发烧论坛

注册

 

发新话题 回复该主题

求小房间的摆位 [复制链接]

查看: 3614|回复: 15
1#
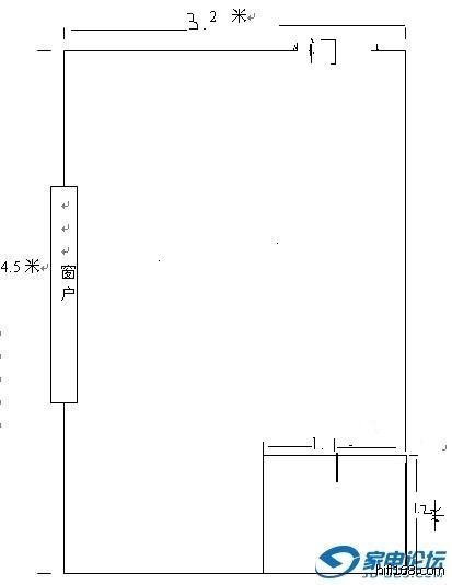
右下角是一个长为1。2来,宽为1。1来的洗手间,这个房间只是用来听音乐的,摆了好多次,都不很理想,想请朋友们帮帮忙,谢谢!
20081126_8b69da869cc875bff02aZnioVKEcCJSA.jpg (, 下载次数:405)

jpg(2008/12/14 16:38:02 上传)

20081126_8b69da869cc875bff02aZnioVKEcCJSA.jpg

最后编辑876558 最后编辑于 2008-12-14 23:06:06
分享 转发
TOP
2#

可不可以這樣。
手如柔荑 肤如凝脂 领如蝤蛴 齿如瓠犀 螓首蛾眉 巧笑倩兮 美目盼兮
TOP
3#

这样看看?

图片
20081126_8b69da869cc875bff02aZnioVKEcCJSA.jpg (, 下载次数:363)

jpg(2008/12/14 19:15:44 上传)

20081126_8b69da869cc875bff02aZnioVKEcCJSA.jpg

世事纷扰 还是听音乐比较好
TOP
4#

右下角分别为凳子和写字桌

。。。。。。。。。。
世事纷扰 还是听音乐比较好
TOP
5#

回复 4# netfatrat60 的帖子

谢谢,右下角是一个长为1。2来,宽为1。1来的洗手间,这个房间只是用来听音乐的,不用床,不好意思,没有说清楚!
TOP
6#
http://www.mydcentre.com
TOP
7#

回复 6# 街灯 的帖子

谢谢
TOP
8#

回复 5# 876558 的帖子

拆了洗手间。听音位在门口边。参考2楼。
TOP
9#

回复 8# 吉村春代 的帖子

我也想啊,可这是我租的房子,房东不给,没有 办法!
TOP
10#

听音位在窗口,参考3楼的。
大文豪欧阳修说:乐之道深矣…听于善,亦必得于心而会于意,不可得而言也。
金嗓子DP-500CD机/C-2800前级/A-50V后级/威卓CR-one音箱
TOP
发新话题 回复该主题