发烧论坛

注册

 

发新话题 回复该主题

曦城 工作日志 [复制链接]

查看: 3775|回复: 17
1#
缘起,一个老客户的成功案例带起的装饰公司的介绍!
本以为生小孩,没满月,在家可以休息一个月!
当小孩出院没几天,接到某装修公司的电话,要求给曦城某栋打造一个地下影音室。
对于目前影音市场对影音室声学认识不是非常到位,基本还停留在器材搭配的层面的现状,抱着试试看的心态极其不情愿的去了一趟!走的急忙,没带什么资料,也就只带了我发表在家庭影院杂志上的一个工程过去了!

通过和业主沟通后,明白业主已经在顺电买了宝华的 6系套装!主要是要求对环境和空间进行声学处理!无心插柳,随即签了设计合同和施工合同!
开始了声学设计!
业主的要求
1影院的震撼效果
2卡拉OK
3高清电视(看球)
合同签好第二天,进行现场测量
宽度为4.9米 高度2.54米  长度是4.2米
业主要求长边摆放!

算了一下比例,长宽比例相对较差
高度尚可
分享 转发
JYxiaolin 梦幻之相    “一切皆有法,如梦幻泡影,如露亦如雷”
【金钵 碟镇】【回音壁 声学处理】【如来 线材】  
微信公众号:JY小林声音文化  微信私信:13631534173
TOP
2#



先来张全景的环境图(画效果图那哥们不知道是不是这个角度
最后编辑深圳小刀 最后编辑于 2010-08-17 00:32:48
JYxiaolin 梦幻之相    “一切皆有法,如梦幻泡影,如露亦如雷”
【金钵 碟镇】【回音壁 声学处理】【如来 线材】  
微信公众号:JY小林声音文化  微信私信:13631534173
TOP
3#






两个我比较关心的角落,也是这次声学处理的重点!
最后编辑深圳小刀 最后编辑于 2010-08-17 00:34:59
JYxiaolin 梦幻之相    “一切皆有法,如梦幻泡影,如露亦如雷”
【金钵 碟镇】【回音壁 声学处理】【如来 线材】  
微信公众号:JY小林声音文化  微信私信:13631534173
TOP
4#

好文章
顶顶,学习一下
TOP
5#



接着来,要做好工程,免不了要做声学测试!
最后编辑深圳小刀 最后编辑于 2010-08-17 23:57:24
JYxiaolin 梦幻之相    “一切皆有法,如梦幻泡影,如露亦如雷”
【金钵 碟镇】【回音壁 声学处理】【如来 线材】  
微信公众号:JY小林声音文化  微信私信:13631534173
TOP
6#

声学分析结果
全频分析图片.jpg (, 下载次数:4)

jpg(2010/8/23 1:29:32 上传)

全频分析图片.jpg

声学.jpg (, 下载次数:2)

jpg(2010/8/23 1:29:32 上传)

声学.jpg

最后编辑深圳小刀 最后编辑于 2010-08-23 01:29:32
JYxiaolin 梦幻之相    “一切皆有法,如梦幻泡影,如露亦如雷”
【金钵 碟镇】【回音壁 声学处理】【如来 线材】  
微信公众号:JY小林声音文化  微信私信:13631534173
TOP
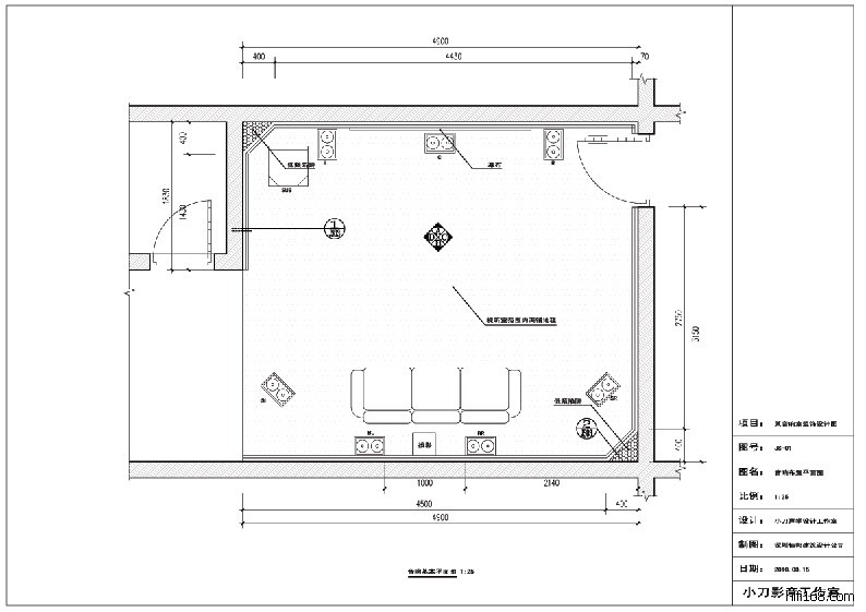
7#




设计好平面图!
JYxiaolin 梦幻之相    “一切皆有法,如梦幻泡影,如露亦如雷”
【金钵 碟镇】【回音壁 声学处理】【如来 线材】  
微信公众号:JY小林声音文化  微信私信:13631534173
TOP
8#

立面图
2.jpg (, 下载次数:5)

jpg(2010/8/23 1:34:18 上传)

2.jpg

3副本.jpg (, 下载次数:0)

jpg(2010/8/23 1:34:18 上传)

3副本.jpg

JYxiaolin 梦幻之相    “一切皆有法,如梦幻泡影,如露亦如雷”
【金钵 碟镇】【回音壁 声学处理】【如来 线材】  
微信公众号:JY小林声音文化  微信私信:13631534173
TOP
9#

结构图
4副本.jpg (, 下载次数:0)

jpg(2010/8/23 1:34:57 上传)

4副本.jpg

JYxiaolin 梦幻之相    “一切皆有法,如梦幻泡影,如露亦如雷”
【金钵 碟镇】【回音壁 声学处理】【如来 线材】  
微信公众号:JY小林声音文化  微信私信:13631534173
TOP
10#

效果图
55副本.jpg (, 下载次数:0)

jpg(2010/8/23 1:35:43 上传)

55副本.jpg

66副本1.jpg (, 下载次数:0)

jpg(2010/8/23 1:36:11 上传)

66副本1.jpg

最后编辑深圳小刀 最后编辑于 2010-08-23 01:36:11
JYxiaolin 梦幻之相    “一切皆有法,如梦幻泡影,如露亦如雷”
【金钵 碟镇】【回音壁 声学处理】【如来 线材】  
微信公众号:JY小林声音文化  微信私信:13631534173
TOP
发新话题 回复该主题