发烧论坛

注册

 

发新话题 回复该主题

音箱两侧无墙,放扩散板?还是反射板? [复制链接]

查看: 32831|回复: 47
21#

原帖由 聆至静 于 2013-10-22 9:11:00 发表
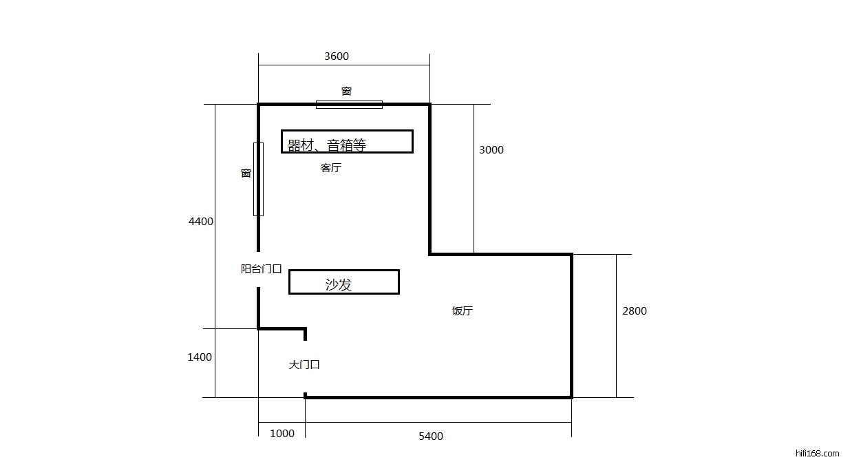
无侧墙对声音是有好处的.

音场就差点
除却西电不是线!http://shop34851791.taobao.com/
TOP
22#

还是摆短边的好。长边摆放可折腾了我几年时间。
最后编辑lwy8353 最后编辑于 2013-11-09 19:15:46
TOP
23#

同上,,,
我之前也在长边摆放,声音及差,最近换回短边摆放后,层次感马上出来了,,,



长边摆放,低频驻波严重,中高频硬,刺耳,,,


换回短边摆放,三段平衡,层次感清晰,,,,
TOP
24#

玻璃窗一侧,高频反射比较厉害,通过摆位精细调整可以取得平衡。如果有空间,放扩散板更好。但要买1-1.2米高度那种重型的效果才好。板下面可以装4只脚轮,平时靠墙,听音乐时拖出来。
.
.
————每一支导体,每一套钉垫,内部都潜藏着小小的精灵,只要找到并解除她的束缚,她就会为您深情地歌唱————.
.

.
.
.
TOP
25#

原帖由 镁声绕梁 于 2013-11-10 9:25:00 发表
玻璃窗一侧,高频反射比较厉害,通过摆位精细调整可以取得平衡。如果有空间,放扩散板更好。但要买1-1.2米高度那种重型的效果才好。板下面可以装4只脚轮,平时靠墙,听音乐时拖出来。

哪里有卖?
除却西电不是线!http://shop34851791.taobao.com/
TOP
26#

当然是短边摆放。装双倍居室宽度的天鹅绒厚窗帘,两侧墙至少有一面挂厚摊,地板放大面积羊毛厚地毯,拉开音箱横向距离,调整音箱直线距离,直到音场宽度和深度都出来。
最后编辑乐友老徐 最后编辑于 2013-11-10 21:22:59
古典留声二手黑胶网址:gudianliusheng.com
TOP
27#

原帖由 乐友老徐 于 2013-11-10 21:20:00 发表
当然是短边摆放。装双倍居室宽度的天鹅绒厚窗帘,两侧墙至少有一面挂厚摊,地板放大面积羊毛厚地毯,拉开音箱横向距离,调整音箱直线距离,直到音场宽度和深度都出来。

试过短边摆放,真的差极了,因为后面是大大的落地窗。
除却西电不是线!http://shop34851791.taobao.com/
TOP
28#

我的也是差不多啊,但没觉得音场差,听着还是舒服的。
壮士豪情怀天下
英雄仗义本无名

江门市青年音响爱好者协会
TOP
29#

情况差不多,同关注
TOP
30#

我在侧墙搞的弧形扩散板
电子邮件:kevin_jfy@163.com  电话:13381702856
淘宝:http://shop62641602.taobao.com/
TOP
发新话题 回复该主题