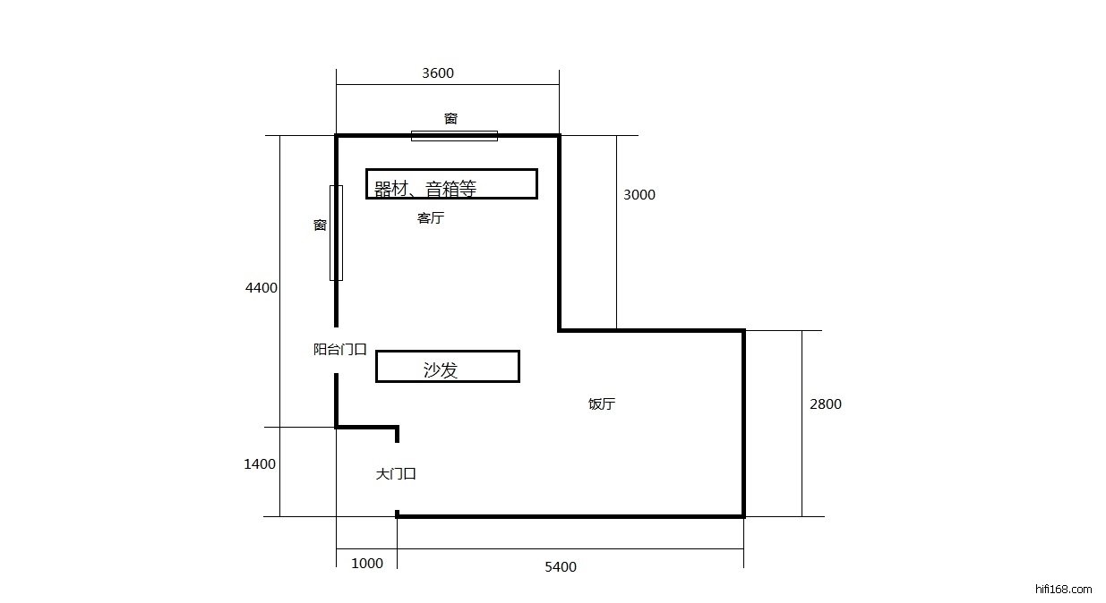
俺倒建议按14楼的图纸把沙发和器材交换方向,原因在于:
1、沙发区对阳台的通道影响很大,不利于交通,器材背是窗户,也不利于声音的反射,沙发背是空虚的,也不利于声音的扩散。
2、如果交换方向的结果是沙发自然形成围合区,对于家庭而言,比较自然,器材背后新做墙体,形成反射面,而且有效的划分出入户玄关区、餐厅区和客厅区。对于声音而言,器材背面已经形成了反射面,两侧的墙面分为A区和B区,其中A区虽然不对称,阳台门方向可以利用窗帘形成声音的吸收面,和对面的通道空虚面效果基本相当,B区也可以采用一些手段做成声音的扩散面而达到2侧墙基本对称,背面就不用说了,天然的对称关系。
这样的客厅说实话不可能做出完全对称的,只能大概差不多就行了,按这样的摆放方式,通过处理,其效果和14楼的方式(也必须通过一定的处理)其结果是差不多的,但从家庭的角度而言肯定会方便许多
