发烧论坛

注册

 

返回列表 «12345678» / 12
发新话题 回复该主题

昨晚迎娶ProAc Response 2.5 进门(新的摆位基本消除驻波 7页上新... [复制链接]

查看: 48252|回复: 115
41#

回复: 昨晚迎娶ProAc Response 2.5 进门

原帖由 lry3676000 于 2008-1-25 11:09:00 发表
原帖由 乐林8 于 2008-1-24 14:29:00 发表
镜影对称!两高音单元是向内摆的才能有上佳的离箱感,凝聚力会更佳,三维和中央结像是理想的.

老大:啥叫镜影对称??



就是偏向靠拢同一宗(面向内),即面对面的镜影迹象.
TOP
42#

回复:昨晚迎娶ProAc Response 2.5 进门

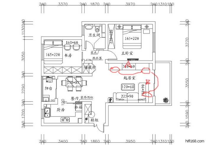
功放没有到位.先把环境改善一下.现在的听音驻波有点严重.上了扩散对驻波改善不明显.倒是结像  和音场的营造  和中高频都有改善.现在有请大侠献计献策 用简单的办法 遏制驻波.客厅的长边:3.95米 短边:3.56米
1.jpg (, 下载次数:115)

jpg(2008/1/28 9:50:13 上传)

1.jpg

2.jpg (, 下载次数:135)

jpg(2008/1/28 9:50:13 上传)

2.jpg

3.jpg (, 下载次数:128)

jpg(2008/1/28 9:50:13 上传)

3.jpg

4.jpg (, 下载次数:131)

jpg(2008/1/28 9:50:13 上传)

4.jpg

6.jpg (, 下载次数:121)

jpg(2008/1/28 9:50:13 上传)

6.jpg

20070604_34247b5c7eadc672e910DT5cJKbDdPHd.jpg (, 下载次数:98)

jpg(2008/1/28 11:19:51 上传)

20070604_34247b5c7eadc672e910DT5cJKbDdPHd.jpg

最后编辑likeperfume 最后编辑于 2008-01-28 11:20:04
TOP
43#

回复:昨晚迎娶ProAc Response 2.5 进门(求大侠关于环境 上图第5页)

下雪了 山海难得一见的大雪
雪景1.jpg (, 下载次数:121)

jpg(2008/1/28 10:23:24 上传)

雪景1.jpg

雪景2.jpg (, 下载次数:124)

jpg(2008/1/28 10:23:24 上传)

雪景2.jpg

雪景3.jpg (, 下载次数:125)

jpg(2008/1/28 10:23:24 上传)

雪景3.jpg

雪景4.jpg (, 下载次数:72)

jpg(2008/1/28 10:23:24 上传)

雪景4.jpg

TOP
44#

回复: 昨晚迎娶ProAc Response 2.5 进门(求大侠关于环境 上图第5页)

原帖由 likeperfume 于 2008-1-28 9:50:00 发表
功放没有到位.先把环境改善一下.现在的听音驻波有点严重.上了扩散对驻波改善不明显.倒是结像  和音场的营造  和中高频都有改善.现在有请大侠献计献策 用简单的办法 遏制驻波


太靠近后墙和角落了,不花一分钱的办法就是把箱子拉出来:),慢慢来,试到您满意为止。
男人要多听音乐,才不会胡思乱想。
TOP
45#

回复:昨晚迎娶ProAc Response 2.5 进门(求大侠关于环境 上图第5页)

好的  回去就试一下.但是距离总是有限的.  墙角放些吸引比较厉害的东西.
TOP
46#

回复:昨晚迎娶ProAc Response 2.5 进门(求大侠关于环境 上图第5页)

将扩散板挪到边角,再将音箱向前挪看看.
TOP
47#

回复:昨晚迎娶ProAc Response 2.5 进门(求大侠关于环境 上图第5页)

好的   各位意见 小弟均会采纳
TOP
48#

回复:昨晚迎娶ProAc Response 2.5 进门(求大侠关于环境 上图第5页)

恭喜恭喜 很漂亮的箱子~~
TOP
49#

回复: 昨晚迎娶ProAc Response 2.5 进门(求大侠关于环境 上图第5页)

原帖由 windtony 于 2008-1-28 12:17:00 发表
恭喜恭喜 很漂亮的箱子~~
谢谢  等待高人指点
TOP
50#

回复:昨晚迎娶ProAc Response 2.5 进门(求大侠关于环境 上图第5页)

有点难,搞不好要动倒相孔
倏忽虚无境 迷离山水情
TOP
发新话题 回复该主题