发烧论坛

注册

 

返回列表 «1112131415161718» / 21
发新话题 回复该主题

〖实战〗客厅音响——喇叭长边摆位 [复制链接]

查看: 162618|回复: 200
141#

回复:〖实战〗客厅音响——喇叭长边摆位

如果是整体声音偏低的话,可以借助吸音材料和二次余数扩散板,在两侧墙调声处理时整体适当抬高,这样可以将整体的声音高低度,做自由的调整。
房间层高的问题我们可以用156泡沐扩散板,在天花板进行处理,得到的是直接感觉层高高了许多,而且真正的堂音和尾韵才随之而出。
TOP
142#

回复:〖实战〗客厅音响——喇叭长边摆位

好贴,有时间我也来请教.
TOP
143#

回复:〖实战〗客厅音响——喇叭长边摆位

学习!
TOP
144#

回复: 〖实战〗客厅音响——喇叭长边摆位

原帖由 贝多芬蒋 于 2008-1-16 12:24:00 发表
如果是整体声音偏低的话,可以借助吸音材料和二次余数扩散板,在两侧墙调声处理时整体适当抬高,这样可以将整体的声音高低度,做自由的调整。
房间层高的问题我们可以用156泡沐扩散板,在天花板进行处理,得到的是直......


如果器材不能够把录音里面的细节,余音,尾音实实在在的放出来,靠房间的反射,扩散,将会是一件困难的事。
有空请到我的博客聊天。
http://hk.myblog.yahoo.com/chowhwk2002
TOP
145#

回复:〖实战〗客厅音响——喇叭长边摆位

搭配基本到位的hifi 器材即使全是国产的,只要通过合理有效的空间处理,也是挺让人满意的,很可能会使您开机后就舍不得关机了。
许多烧友器材很好可还是无止境的折腾,声音整体还原却一般般。可能的原因还是没有掌握一套,行之有效合理的空间调整方法。
很愿意与您再交流。
TOP
146#

回复: 〖实战〗客厅音响——喇叭长边摆位

原帖由 贝多芬蒋 于 2008-1-16 0:45:00 发表
好系统也是需要在3米以上的短边房间里,通过合理的吸收与扩散和准确摆位,只有这样才能营造出一个良好的声场。达到基本上很好的还原唱片里的录音效果,得到了结像清晰真实,前障板至后墙的层次分明和音场宽深高,音色......


"营造"  还是 "还原"?

如果是"营造", 完全可以根据系统的特点, 房间的条件和个人的喜好自由发挥.

如果是"还原", 那就只能依靠尽量保真的系统本身, 另外就是尽量减少周围的反射来"还原" 软件上的记录了.  除非记录软件或系统有缺陷, 任何通过环境做任何的调整只能是篡改.  即使记录软件或系统有缺陷, 自己根本不知道原来现场的情况, 又如何"还原"呢? 只能是主观的东西.


所以,首先自己应该想清楚目标再去走路.

可以通过调整环境和系统去"营造"自己喜欢的声音, 却不能说去"还原".

喇叭长边摆位 比反射能 尽量地去还原.
最后编辑hifi40cn 最后编辑于 2008-01-17 11:01:45
A Naimed Audiofool fooled by both Naim and music.
TOP
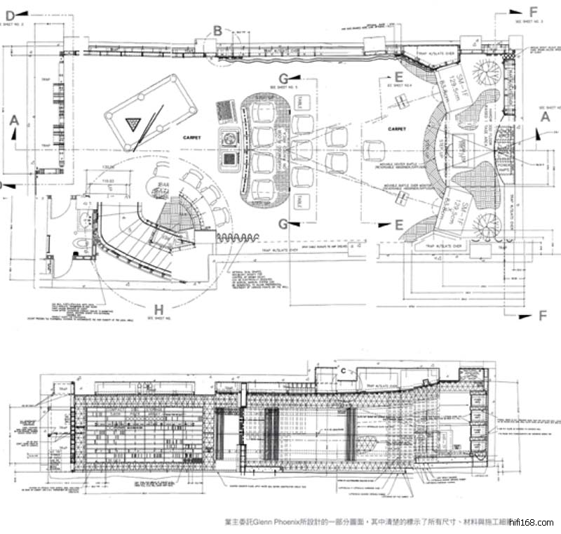
147#

回复: 〖实战〗客厅音响——喇叭长边摆位

欣赏一下台湾陈生的音乐厅。

空间设计:Glenn Phoenix
               Westlake Audio
               Manufactuning Group

音响器材:喇叭:Westlake Audio SM-1F(二路电子分音)
              电子分音器:Westlake Audio MRX-2
              电源处理器:Tice Power Block
              CD Play:Wadia 7+9
              前级:Cello Audio Suite
              类比音频等化器:Cello Audio Palette
              高/中音扩大器:Cello Audio Performance
              低音扩大器:Crown Studio
chens_listening_room_1.jpg (, 下载次数:49)

jpg(2008/1/17 16:33:06 上传)

chens_listening_room_1.jpg

chens_listening_room_2.jpg (, 下载次数:48)

jpg(2008/1/17 16:33:06 上传)

chens_listening_room_2.jpg

chens_listening_room_3.jpg (, 下载次数:46)

jpg(2008/1/17 16:33:06 上传)

chens_listening_room_3.jpg

音响的乐趣,在于演奏。
欢迎到访我的博客http://adam.lee.vip.blog.163.com/
累的时候听着音乐睡一会,闲的时候搞搞音响乐在其中。
TOP
148#

回复:〖实战〗客厅音响——喇叭长边摆位

所谓自己喜欢的声音只能代表个人的意愿,并非就是正确好声。
hifi系统和唱片非常正常,也一定要对空间进行合理的处理,才能还原出接近真实乐器的声音及声像形体。
最后编辑贝多芬蒋 最后编辑于 2008-01-17 19:19:34
TOP
149#

回复:〖实战〗客厅音响——喇叭长边摆位

录音理念并不是要表现出100%的现场为前提,而是一种独立的艺术形态。
音响的乐趣,在于演奏。
欢迎到访我的博客http://adam.lee.vip.blog.163.com/
累的时候听着音乐睡一会,闲的时候搞搞音响乐在其中。
TOP
150#

回复:〖实战〗客厅音响——喇叭长边摆位

smf1能入墙的话,低频可能会更结实,只是不能摆位了。
富盛网站  fshifi.cn     富盛音响微信号:fshifipt
文杰用户Q群:  475324510
富盛淘宝 https://shop34536926.taobao.com/
TOP
发新话题 回复该主题